
НАШИ ПРОЕКТЫ




KБ 1 | 216.13 М2
Параметры:
Общая площадь – 216,13 м2
Площадь застройки – 211,98 м2
Высота дома – 7,85 м
Материалы:
Фундамент – монолитный железобетонный ленточный и столбчатый
Стены – блоки газобетонные 400мм
Перекрытие – многопустотные плиты перекрытия.
Кровля – металлочерепица
Отделка – штукатурка, планкен




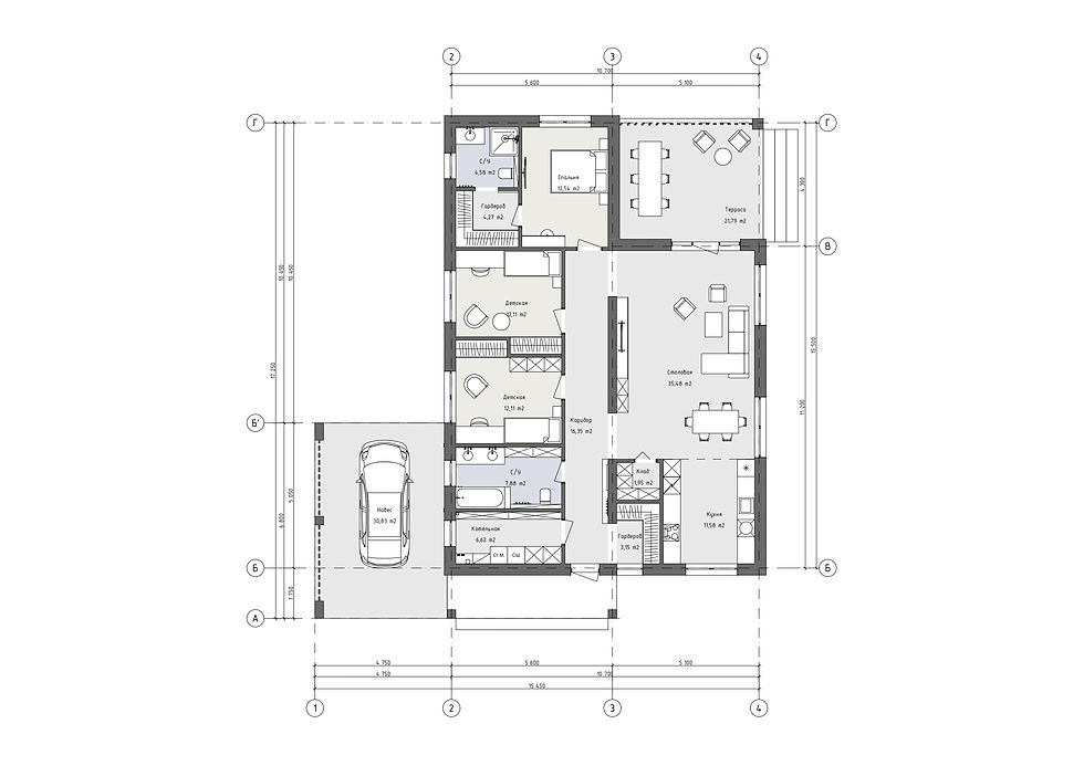
KБ 2 | 138.06 М2
Параметры:
Общая площадь –138,06 м2
Площадь застройки – 220,09 м2
Высота дома – 5,54 м
Уклон крыши - 25° (основная)
Материалы:
Фундамент – свайно-ростверковый буронабивной
Стены – блоки газобетонные 400мм+утепление 50 мм
Перекрытие – деревянные балки перекрытия
Кровля – фальц
Отделка фасадов – клинкерная плитка, планкен




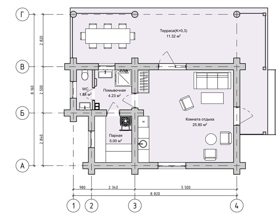
KБ 3 | 112.85 М2
Параметры:
Общая площадь - 112,85 м2
Площадь застройки - 92,4 м2
Высота дома - 7,61 м
Уклон крыши - 35°
Материалы:
Фундамент - ленточный монолитный железобетонный
Стены - блоки газобетонные 300 мм
Перекрытие - многопустотные железобетонные плиты
Кровля - металлопрофиль
Отделка - металлопрофиль, планкен




KБ 4 | 131.41 М2
Параметры:
Общая площадь – 131.41 м2
Площадь застройки – 190,18 м2
Высота дома – 3,6 м
Материалы:
Фундамент – ленточный монолитный железобетонный
Стены – блоки газобетонные 400мм, монолитный железобетон 250мм
Перекрытие – монолитная железобетонная плита
Отделка – штукатурка, планкен




KБ 5 | 183.01 М2
Параметры:
Общая площадь - 183,01м2
Площадь застройки - 138,8 м2
Высота дома - 7,6 м.
Уклон кровли - 40°
Материалы:
Фундамент - ленточный монолитный железобетонный
Стены - блоки газобетонные 400 и 300 мм
Перекрытие - многопустотные железобетонные плиты
Отделка - штукатурка, планкен




KБ 6 | 191.54 М2
Параметры:
Общая площадь – 191,54 м2
Площадь застройки – 132,62 м2
Высота дома – 7,93 м
Материалы:
Фундамент – монолитный железобетонный ленточный
Стены – блоки газобетонные 400мм и 300мм
Перекрытие – монолитная железобетонная плита
Кровля – битумная черепица
Отделка – штукатурка, клинкерная плитка




KБ 7 | 128.71 М2
Параметры:
Общая площадь – 128,71 м2
Площадь застройки – 176,06 м2
Высота дома – 6,3 м
Уклон кровли – 30°
Материалы:
Фундамент – свайно-ростверковый буронабивной
Стены – блоки газосиликатные 300мм
Перекрытие – деревянные балки перекрытия
Кровля – фальц
Отделка - штукатурка, планкен




KБ 8 | 206.01 М2
Параметры:
Общая площадь 206,1 м2
Площадь застройки 172,48м2
Высота дома 8,15 м.
Уклон крыши 25°
Материалы:
Фундамент – свайно-ростверковый буронабивной
Стены – деревянный сруб 340мм
Перекрытие – деревянные балки
Кровля – модульная металлочерепица




KБ 9 | 147.20 М2
Параметры:
Общая площадь - 147,20 м2
Площадь застройки - 218,73 м2
Высота дома - 4,95 м.
Уклон крыши - 10°, 12°
Материалы:
Фундамент – свайно-ростверковый буронабивной
Стены – блоки газобетонные 300мм(+100 мм утеплитель)
Перекрытие – деревянные балки перекрытия
Кровля – фальц
Отделка - планкен




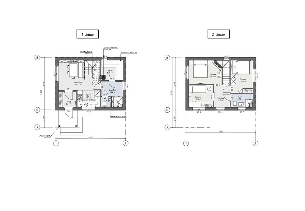
KБ 10 | 69.9 М2
Параметры:
Общая площадь - 69,9 м2
Площадь застройки - 52,2 м2
Высота дома -7,8 м.
Уклон крыши - 25°
Материалы:
Фундамент – монолитный железобетонный ленточный
Стены – блоки газобетонные 300мм(+50 мм утеплитель)
Перекрытие – многопустотные железобетонные плиты
Кровля – металлочерепица
Отделка - штукатурка, планкен




KБ 11 | 229.8 М2
Параметры:
Общая площадь - 229,8 м2
Площадь застройки- 166,4 м2
Высота дома - 6,84 м.
Уклон крыши - 1,5° (плоская кровля)
Материалы:
Фундамент – монолитный железобетонный ленточный
Стены – блоки газобетонные 300мм, 400 мм(+100 мм утеплитель)
Перекрытие – многопустотные железобетонные плиты
Кровля – нижний и верхний гидроизоляционный ковер
Отделка - штукатурка, планкен




KБ 12 | 180.40 М2
Параметры:
Общая площадь - 180,40м2
Площадь застройки -222,15 м2
Высота дома - 8,691 м
Уклон крыши - 25°
Материалы:
Фундамент – ленточный монолитный железобетонный
Стены – блоки газобетонные 400 мм (+50 мм утеплитель)
Перекрытие – плита монолитная железобетонная, деревянные балки перекрытия
Кровля – фальц с полимерным покрытием
Отделка - штукатурка




KБ 13 | 127.12 М2
Параметры:
Общая площадь - 127,12 м2
Площадь застройки - 174,28 м2
Высота дома - 6,8 м
Уклон крыши - 35°
Материалы:
Фундамент – свайно-ростверковый буронабивной
Стены – блоки газобетонные 300 мм (+100 мм утеплитель)
Перекрытие – деревянные балки перекрытия
Кровля – фальц
Отделка- штукатурка, планкен, фальц




KБ 14 | 375.94 М2
Параметры:
Общая площадь - 375,94 м2
Площадь застройки - 313,4 м2
Высота дома - 4,35 м (от отметки 0,000)
Уклон крыши - 1,5° (плоская кровля)
Материалы:
Фундамент – ленточный монолитный железобетонный
Стены – блоки газобетонные 400 мм (+50 мм утеплитель)
Перекрытие – многопустотные железобетонные плиты
Отделка- штукатурка, планкен, плитка керамогранитная




KБ 15 | 172.76 М2
Параметры:
Общая площадь - 172,76 м2
Площадь застройки - 206,11 м2
Высота дома - 8,47 м
Уклон крыши - 35° (основная крыша)
Материалы:
Фундамент – ленточный монолитный железобетонный
Стены – блоки газобетонные 300 мм (+100 мм утеплитель)
Перекрытие – многопустотные железобетонные плиты, деревянные балки перекрытия
Кровля - металлочерепица
Отделка- штукатурка, планкен




KБ 16 | 116.68 М2
Параметры:
Общая площадь - 116,68 м2
Площадь застройки - 168,62 м2
Высота дома - 4,6 м
Уклон крыши - 1,5° (плоская кровля)
Материалы:
Фундамент – ленточный монолитный железобетонный
Стены – блоки газобетонные 400 мм (+50 мм утеплитель)
Перекрытие – многопустотные железобетонные плиты
Отделка- штукатурка




KБ 17 | 152.85 М2
Параметры:
Общая площадь - 152,85 м2
Площадь застройки - 199,38 м2
Высота дома - 6,26 м
Уклон крыши - 27°
Материалы:
Фундамент – монолитная фундаментная плита
Стены – блоки газобетонные 400 мм
Перекрытие – деревянные балки перекрытия
Кровля - фальц
Отделка- окрашенный планкен




KБ 18 | 144,244 М2
Параметры:
Общая площадь - 144,24 м2
Площадь застройки - 221,86 м2
Высота дома - 3,78 м
Уклон крыши - 1,5° (плоская кровля)
Материалы:
Фундамент – ленточный монолитный железобетонный
Стены – блоки газобетонные 400 мм
Перекрытие – монолитная железобетонная плита
Отделка- штукатурка




KБ 19 | 102.26 М2
Параметры:
Общая площадь - 102,26 м2
Площадь застройки - 100,70 м2
Высота дома - 6,69 м
Уклон крыши - 25°
Материалы:
Фундамент –свайно-ростверковый буронабивной
Стены – блоки газобетонные 300 мм (+100 утеплитель)
Перекрытие – деревянные балки перекрытия
Кровля - металлочерепица
Отделка- штукатурка, планкен, клинкерная плитка




KБ 20 | 147.31 М2
Параметры:
Общая площадь - 147,31 м2
Площадь застройки - 200,61 м2
Высота дома - 5,95 м
Уклон крыши - 25°
Материалы:
Фундамент – свайно-ростверковый буронабивной
Стены – блоки газобетонные 300 мм (+100 утеплиткль)
Перекрытие – деревянные балки перекрытия
Кровля - металлочерепица
Отделка- штукатурка, планкен




KБ 21 | 121.83 М2
Параметры:
Общая площадь - 121,83 м2
Площадь застройки - 169,23 м2
Высота дома - 5,51 м
Уклон крыши - 23°
Материалы:
Фундамент – ленточный монолитный железобетонный
Стены – блоки газобетонные 300 мм (+100 утеплитель)
Перекрытие – деревянные балки перекрытия
Кровля - фальц
Отделка- штукатурка




KБ 22 | 151.80 М2
Параметры:
Общая площадь - 151,80 м2
Площадь застройки - 130,80 м2
Высота дома - 8,64 м
Уклон крыши - 22°
Материалы:
Фундамент – ленточный монолитный железобетонный
Стены – блоки газобетонные 300 мм (+100 утеплитель)
Перекрытие – многопустотные железобетонные плиты , деревянные балки перекрытия
Кровля - металлочерепица
Отделка- штукатурка, планкен